Kato Paphos:
Nr° do objecto: 0086
























Preço:
630.000 €
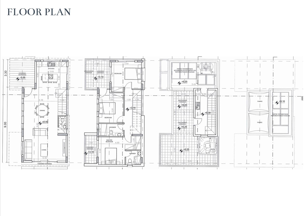
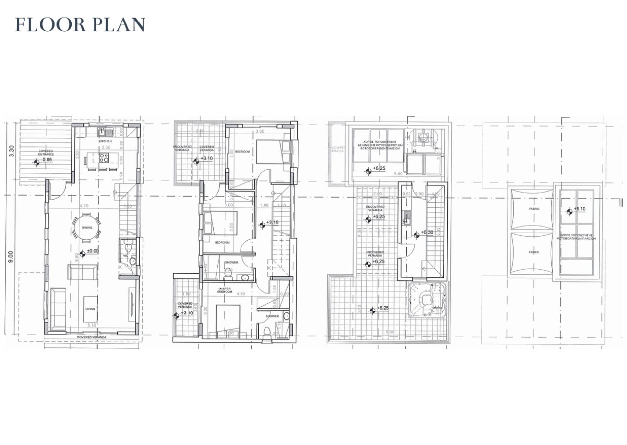
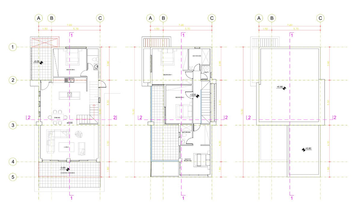
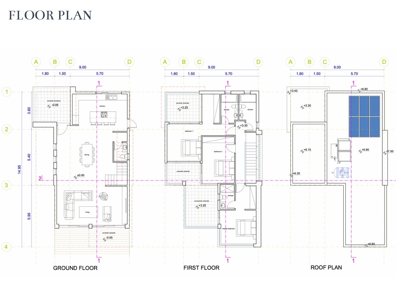
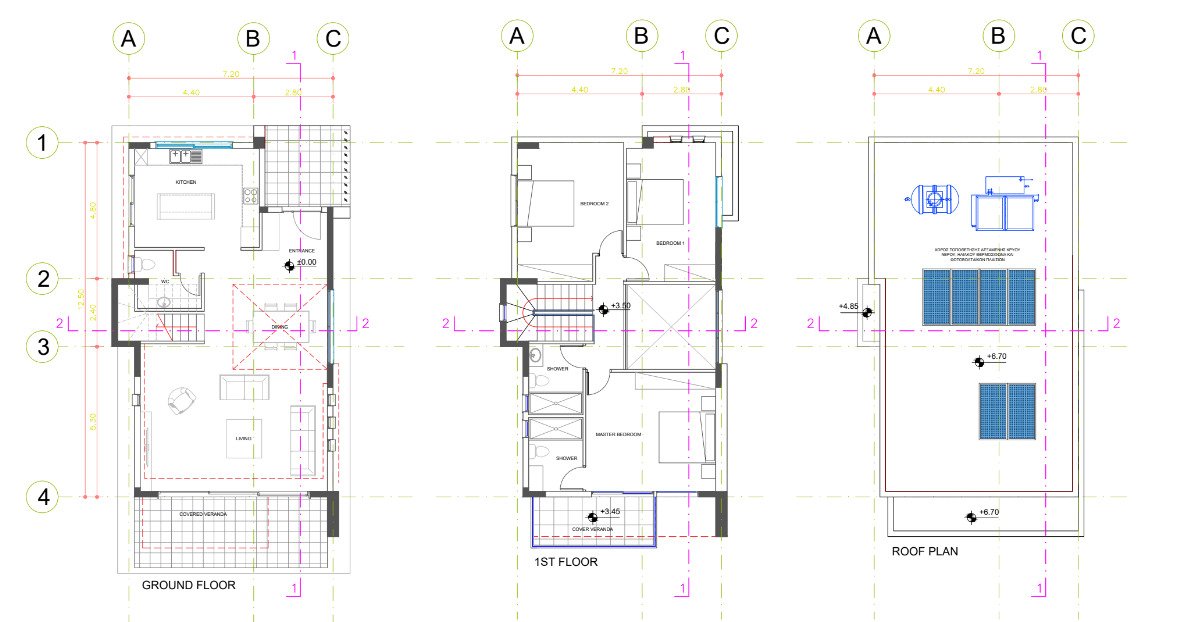
Área residencial com cerca de:
140 m²
Imóvel:
300 m²
Número de quartos:
4
Tipo de casa: Villa
Nr.° de andares: 2
Cozinha: Cozinha equipada, Aberto
Casa de banho: Duche, Janela
Número dos quartos de dormir: 3
Número de casas de banho: 2
Balcão: 2
Terraço: 2
WC de hóspedes: Sim
Jardim: Sim
Piscina: Sim
Ar condicionado: Sim
Sistema de alarme: Sim
Apropriada como morada de férias: Sim
Área circundante: Lojas, Proximidade da praia
Número de parques de estacionamento: 2 x Vaga no estacionamento externo
Vista: Vista para o mar
Qualidade da mobília: Avançado
Ano de construção: 2025
Fase de construção: Casa em planeamento (projectada)
Estado: Casa em planeamento (projectada)
Classe energética: A
Upon signing a purchase contract, a placement / termination fee of 5.8% including 19% VAT on the purchase price by the buyer will be charged.
The information provided by us is based on information provided by the seller or the seller. For the correctness and completeness of the information, no responsibility or liability can be accepted. An intermediate sale and mistakes are reserved.
We refer to our terms and conditions. Through further use our services do you explain your knowledge and consent.
Você também pode gostar
Erstklassige Luxusvilla Tala-Paphos
Luxurious 3 Bedroom Villa-Mesogi-Residence Nr7
8046 Kato Paphos






















































