Tremithousa / Paphos:
Nr° do objecto: 0077




































Preço:
530.000 €
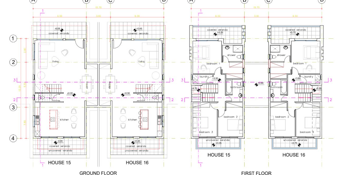
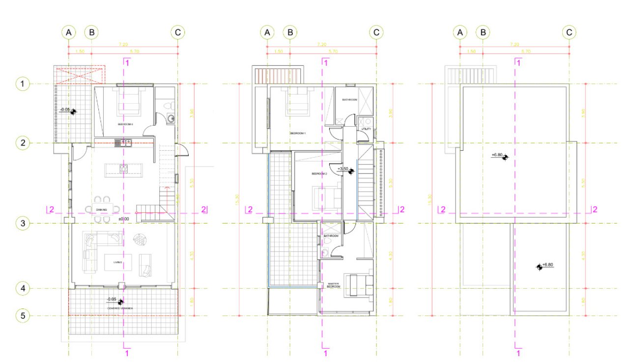
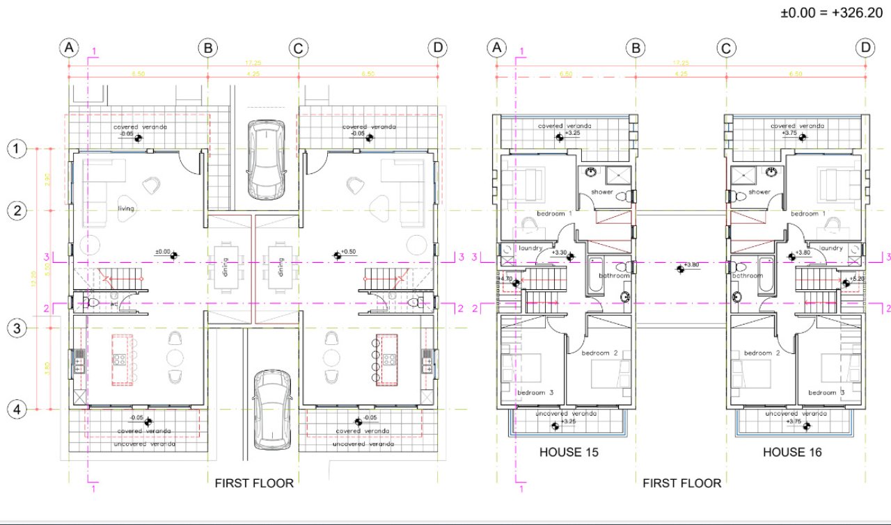
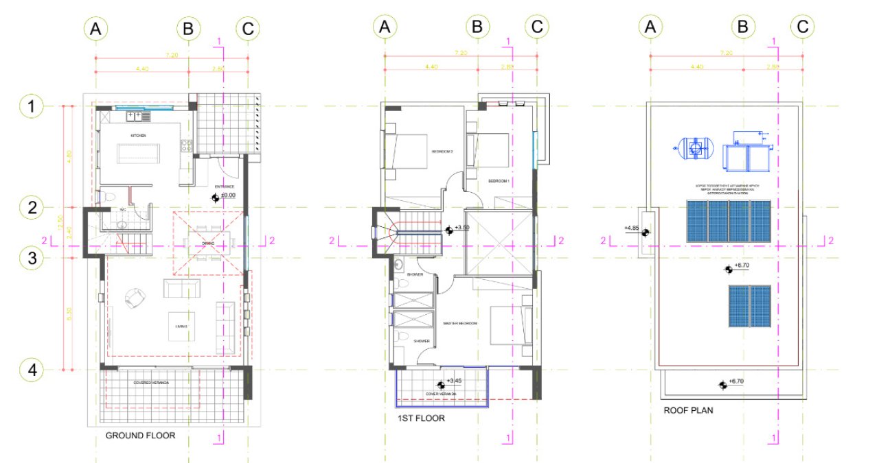
Área residencial com cerca de:
195 m²
Imóvel:
260 m²
Número de quartos:
4
Tipo de casa: Villa
Nr.° de andares: 2
Número dos quartos de dormir: 3
Número de casas de banho: 2
Terraço: 2
WC de hóspedes: Sim
Ar condicionado: Sim
Sistema de alarme: Sim
Apropriada como morada de férias: Sim
Número de parques de estacionamento: 1 x Vaga no estacionamento externo
Vista: Vista para o mar
Qualidade da mobília: Luxo
Fase de construção: Casa em planeamento (projectada)
Estado: Casa em planeamento (projectada)
Upon signing a purchase contract, a placement / termination fee of 5.8% including 19% VAT on the purchase price by the buyer will be charged.
The information provided by us is based on information provided by the seller or the seller. For the correctness and completeness of the information, no responsibility or liability can be accepted. An intermediate sale and mistakes are reserved.
We refer to our terms and conditions. Through further use our services do you explain your knowledge and consent.
Você também pode gostar
8270 Tremithousa / Paphos


































































