Tala:
Nyilvántartási sz.: 0119




















Vételár:
810.000 €
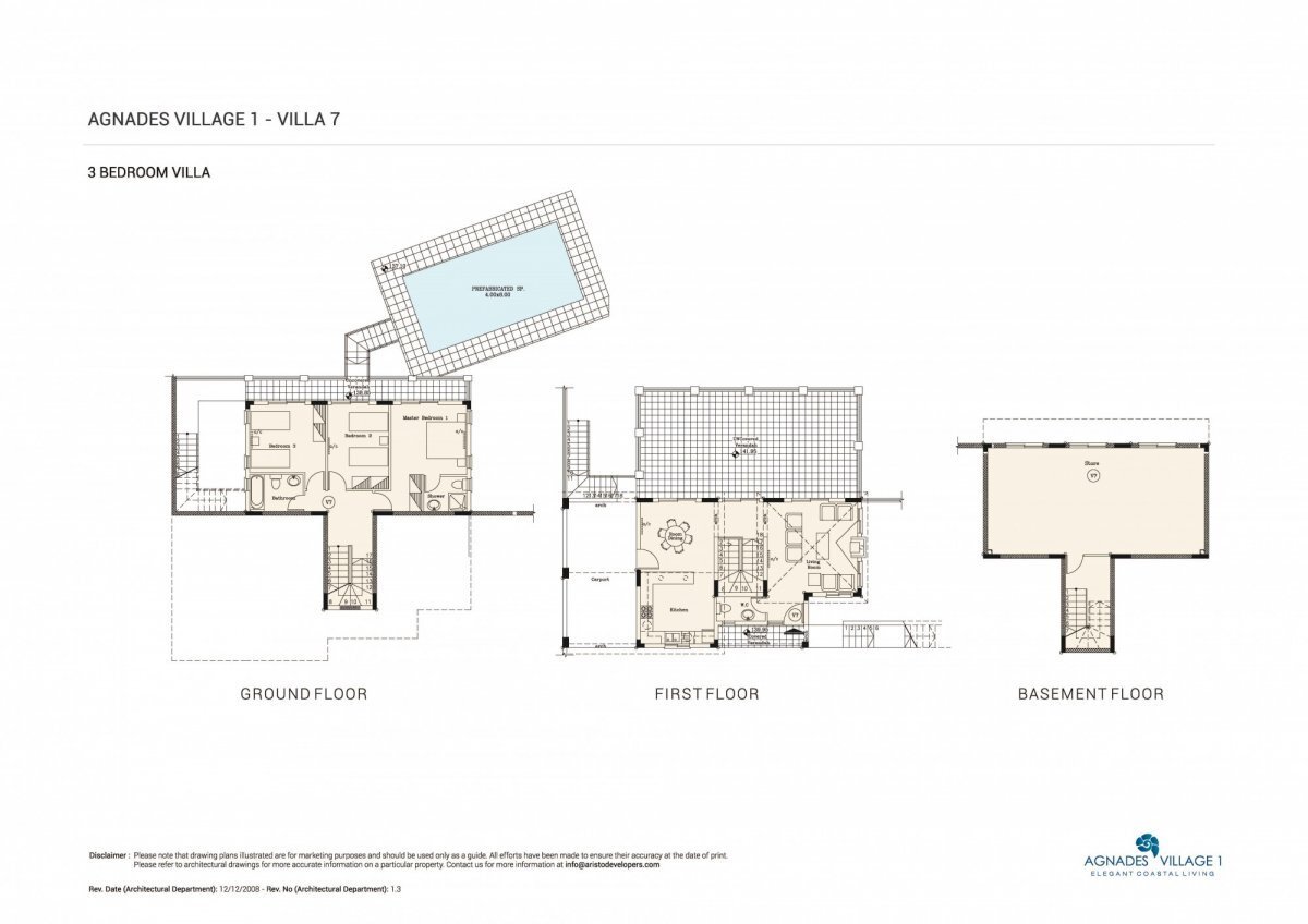
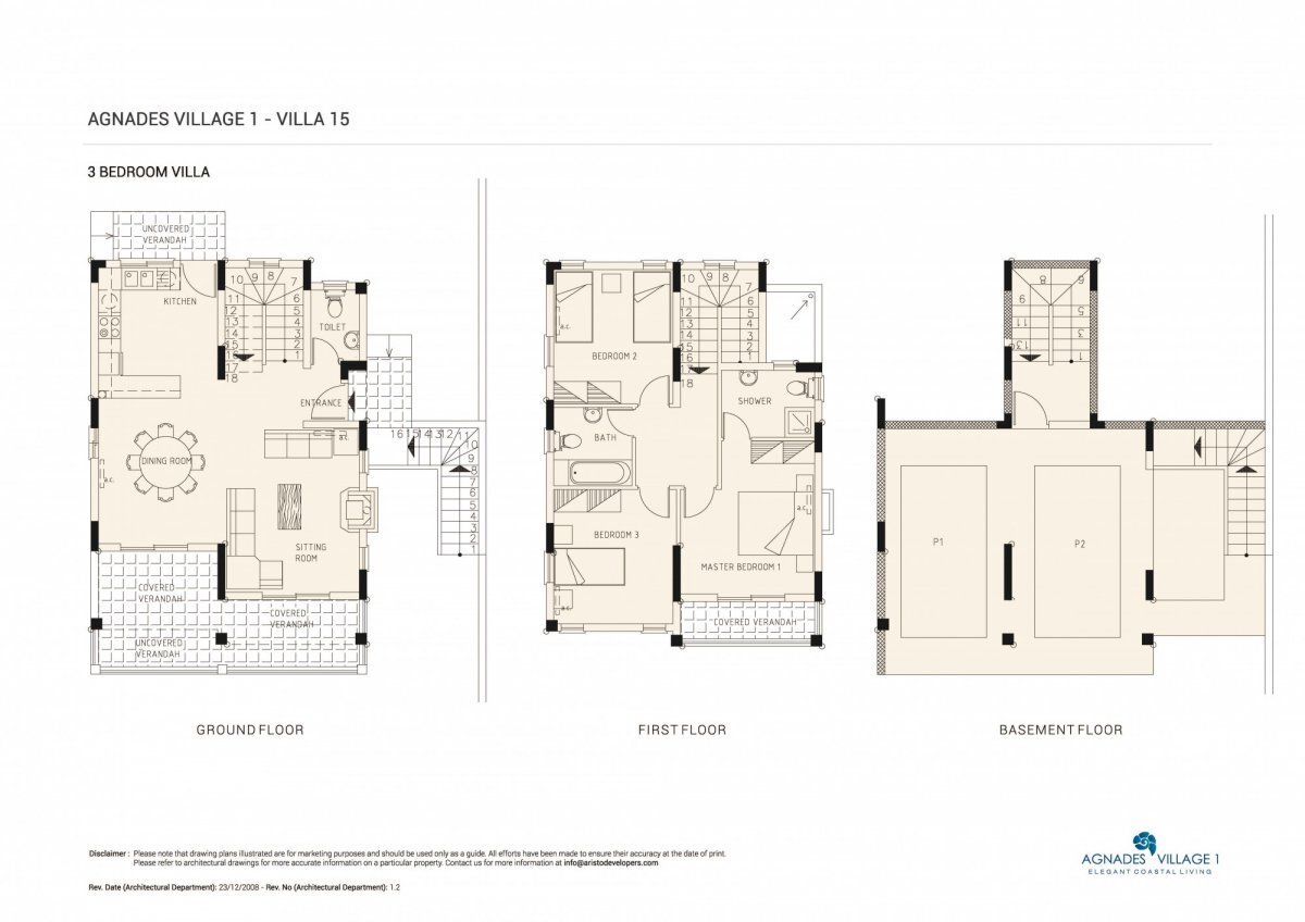
Lakóterület kb.:
230 nm;
Telek kb.:
1.180 nm;
Szobák száma:
4
Ház típusa: Villa
Szintek száma: 2
Hálószobák száma: 3
Fürdoszobák száma: 3
Erkély: 2
Terasz: 1
Vendég-WC: igen
Úszómedence: igen
Légkondicionáló: igen
Riasztóberendezés: igen
Nyaralónak alkalmas: igen
parkoló helyek száma : 2 x Külso beállóhelyek
Kilátás: Tengerre nyíló kilátás
A berendezés minosége: Luxus
Építkezési fázis: Tervezés alatt álló ház (tervezett)
Futés: Padló
Upon signing a purchase contract, a placement / termination fee of 5.8% including 19% VAT on the purchase price by the buyer will be charged.
The information provided by us is based on information provided by the seller or the seller. For the correctness and completeness of the information, no responsibility or liability can be accepted. An intermediate sale and mistakes are reserved.
ON REQUEST we recommend financing experts from renowned houses such Bausparkasse Mainz, Deutsche Vermögensberatung and others.
We refer to our terms and conditions. Through further use our services do you explain your knowledge and consent.
Lehet, hogy neked is tetszeni fog
8577 Tala
































































