Paphos:
Nyilvántartási sz.: 0071














Vételár:
397.000 €
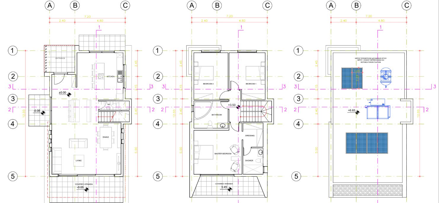
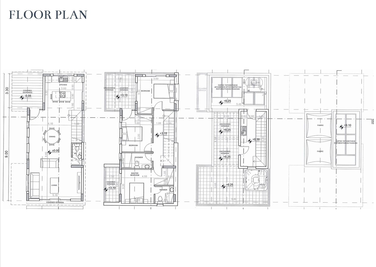
Lakóterület kb.:
121,68 nm;
Telek kb.:
796,37 nm;
Szobák száma:
3
Ház típusa: Villa
Szintek száma: 2
Konyha: Beépített konyha
Hálószobák száma: 2
Fürdoszobák száma: 2
Terasz: 2
Loggia: 2
Vendég-WC: igen
Úszómedence: igen
Nyaralónak alkalmas: igen
parkoló helyek száma : 1 x Autóbeálló
Kilátás: Kilátás távolra
A berendezés minosége: Emelt szintu
Építkezési fázis: Tervezés alatt álló ház (tervezett)
Upon signing a purchase contract, a placement / termination fee of 5.8% including 19% VAT on the purchase price by the buyer will be charged.
The information provided by us is based on information provided by the seller or the seller. For the correctness and completeness of the information, no responsibility or liability can be accepted. An intermediate sale and mistakes are reserved.
We refer to our terms and conditions. Through further use our services do you explain your knowledge and consent.
Lehet, hogy neked is tetszeni fog
Agnades Village Villa No 1
20 Luxus- Villen mit Meerblick
8500 Paphos



























