Kato Paphos:
Broj objekta: 0086
























Cijena:
630.000 €
Prostor za življenje cca.:
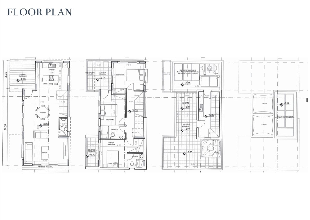
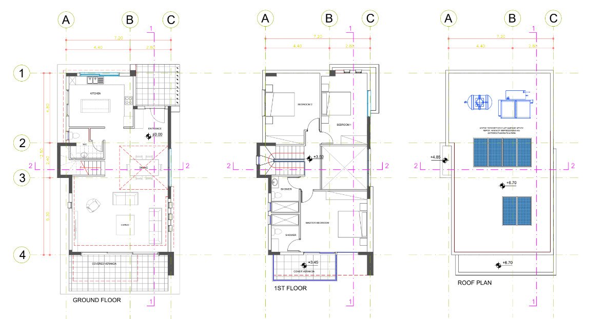
140 m2.
Zemljište:
300 m2.
Broj soba :
4
Tip kuæe: Vila
Broj katova: 2
Kuhinja: Ugradbena kuhinja, Otvoren
Kupaona: Tuš, Prozor
Broj spavaæih soba: 3
Broj kupaonica: 2
Balkon: 2
Terasa: 2
WC za goste: Da
Vrt: Da
Bazen: Da
Klima uredaj: Da
Alarmni uredaj: Da
Prikladno kao kuca za odmor: Da
Okruženje: Mogućnost kupovanja, Blizina plaže
Broj parkirnih mjesta: 2 x Vanjsko parkirno mjesto
Pogled: Pogled na more
Kvaliteta opreme: Visoka
Vrijeme izgradnje: 2025
Faza gradnje: Kuca u planu (projektirana)
Stanje: Kuca u planu (projektirana)
Energetski razred: A
Upon signing a purchase contract, a placement / termination fee of 5.8% including 19% VAT on the purchase price by the buyer will be charged.
The information provided by us is based on information provided by the seller or the seller. For the correctness and completeness of the information, no responsibility or liability can be accepted. An intermediate sale and mistakes are reserved.
We refer to our terms and conditions. Through further use our services do you explain your knowledge and consent.
Možda bi vam se također svidjelo
Luxus Traum-Villa Meerblick Lofos Residences
Schicke 2SZ Villa im berühmten Venus Rock Golf Resort
8046 Kato Paphos






























