Paphos/ Emba:
Broj objekta: 0040














Cijena:
470.000 €
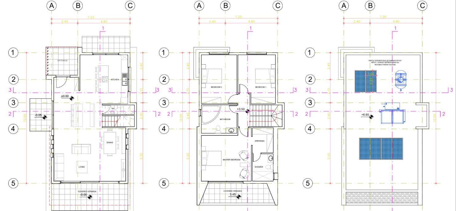
Prostor za življenje cca.:
191 m2.
Zemljište:
415 m2.
Broj soba :
4
Tip kuæe: Vila
Broj katova: 2
Kuhinja: Ugradbena kuhinja
Broj spavaæih soba: 3
Broj kupaonica: 3
Terasa: 1
WC za goste: Da
Vrt: Da
Bazen: Da
Klima uredaj: Da
Prikladno kao kuca za odmor: Da
Okruženje: Blizina plaže
Broj parkirnih mjesta: 1 x Natkriveni parking
Pogled: Pogled na more
Kvaliteta opreme: Luksuzna
Faza gradnje: Kuca u planu (projektirana)
Oblaganje podova: Keramièke ploèice
Stanje: Kuca u planu (projektirana)
Upon signing a purchase contract, a placement / termination fee of 5.8% including 19% VAT on the purchase price by the buyer will be charged.
The information provided by us is based on information provided by the seller or the seller. For the correctness and completeness of the information, no responsibility or liability can be accepted. An intermediate sale and mistakes are reserved.
We refer to our terms and conditions. Through further use our services do you explain your knowledge and consent.
Možda bi vam se također svidjelo
Atemberaubende Luxusresidenz Lofos Residences
Exklusive Neubau-Villa am Strand Paphos Ammos V08
AQUILA 3 Bedroom Villa in Tala
8250 Paphos/ Emba


































