Tala /Paphos:
N° de l´objet: 0078
























Prix:
850.000 €
Surface habitable env.:
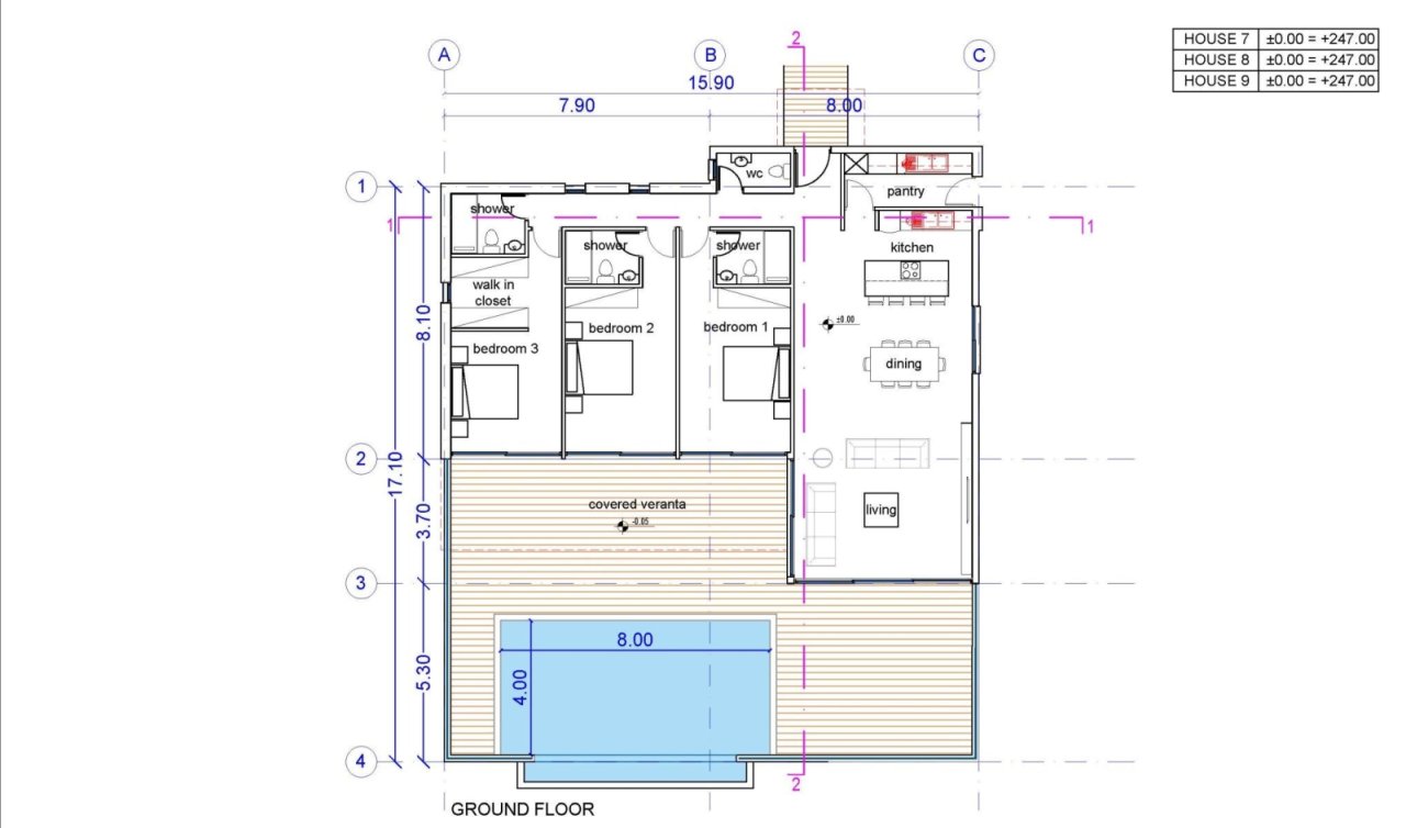
192 m².
Terrain env.:
775 m².
Nombre de pièces:
4
Type de maison: Maison de plain-pied
Nombre d´étages: 1
Cuisine: Ouverte
Nombre de chambres à coucher: 3
Nombre de salles de bain: 3
Terrasse: 2
Loggia: 1
Toilettes invités: Oui
Piscine: Oui
Climatisation: Oui
Système d'alarme: Oui
Idéale en tant que maison de vacances: Oui
Environnement: Parcours de golf
Nombre des places de parking: 1 x Parking extérieur
Vue: Vue sur la mer
Qualité de l´équipement: Luxe
Année de construction: 2025
Phase de construction: Maison en construction
État: Premier occupant
Upon signing a purchase contract, a placement / termination fee of 5.8% including 19% VAT on the purchase price by the buyer will be charged.
The information provided by us is based on information provided by the seller or the seller. For the correctness and completeness of the information, no responsibility or liability can be accepted. An intermediate sale and mistakes are reserved.
We refer to our terms and conditions. Through further use our services do you explain your knowledge and consent.
Vous pourriez aussi aimer
8577 Tala /Paphos



































































