Kathikas:
N° de l´objet: K055
























































































Prix:
1.300.000 €
Surface habitable env.:
200 m².
Terrain env.:
7.000 m².
Nombre de pièces:
5
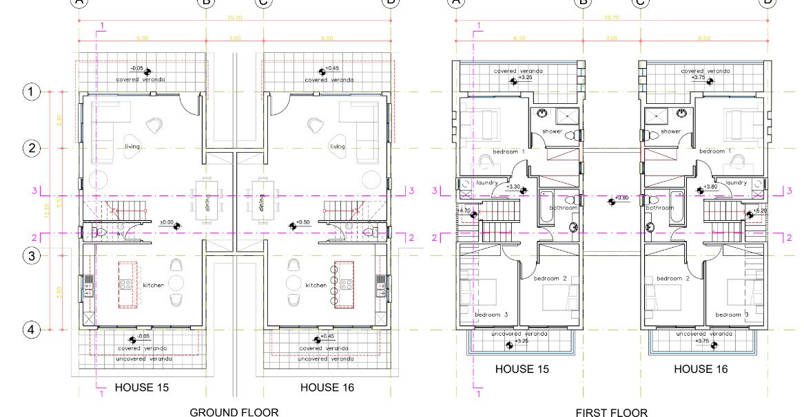
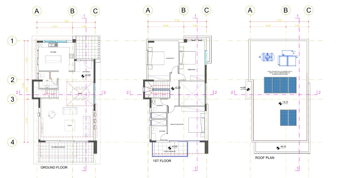
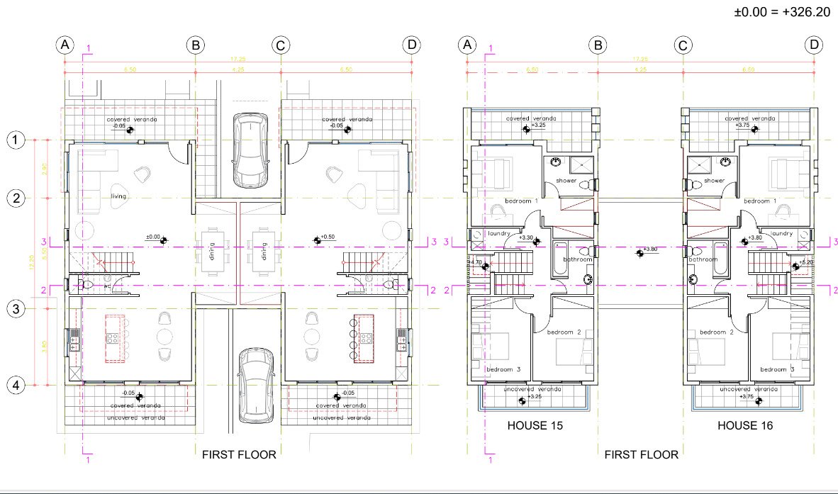
Type de maison: Maison individuelle
Nombre d´étages: 1
Surface utile env.: 300 m².
Cuisine: Cuisine aménagée
Salle de bain: Douche, Baignoire
Nombre de chambres à coucher: 5
Nombre de salles de bain: 6
Loggia: 1
Accessible: Oui
Toilettes invités: Oui
Non-fumeur: Oui
Piscine: Oui
Jardin d'hiver: Oui
Cave: En partie sous-terrain
Climatisation: Oui
Système d'alarme: Oui
Idéale en tant que maison de vacances: Oui
Environnement: Port, Proximité de la plage
Ameublement: Oui
Vue: Vue sur la mer
Dernière modernisation/ rénovation: 2018
Qualité de l´équipement: Haut de gamme
Année de construction: 2018
Phase de construction: Maison terminée
Upon signing a purchase contract, a placement / termination fee of 5.8% including 19% VAT on the purchase price by the buyer will be charged.
The information provided by us is based on information provided by the seller or the seller. For the correctness and completeness of the information, no responsibility or liability can be accepted. An intermediate sale and mistakes are reserved.
We refer to our terms and conditions. Through further use our services do you explain your knowledge and consent.
Vous pourriez aussi aimer
Agnades Village Villa No 15
Erstklassige 2SZ Villa im Golf Resort Venus Rock Paphos
8573 Kathikas




























