Paphos:
Referencia: 0071














Precio:
397.000 €
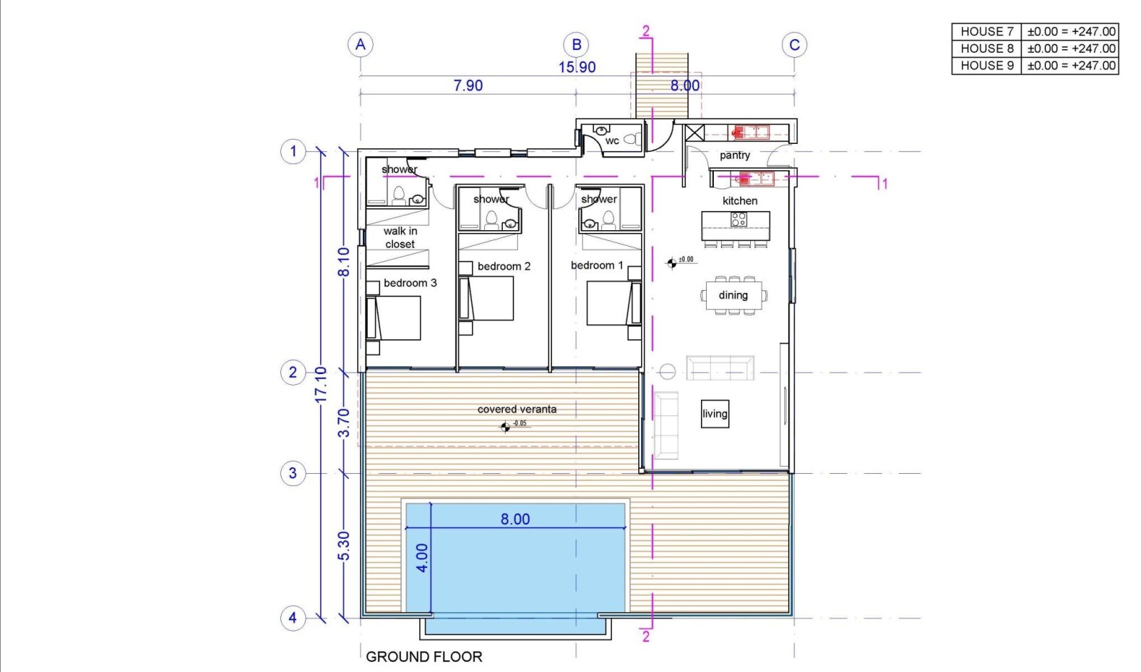
Superficie útil aprox.:
121,68 m²
Terreno aprox.:
796,37 m²
Cantidad habitaciones:
3
Tipo de casa: Villa
N° de plantas: 2
Cocina: Cocina completa
Cantidad dormitorios: 2
Cantidad baños: 2
Terraza: 2
Galería: 2
WC para huéspedes: sí
Piscina: sí
Para vacaciones: sí
Cantidad de aparcamientos: 1 x cobertizo de coche
Vista: Vista Panorámica
Calidad del mobiliario: De calidad
Fase de construcción: Casa en planificación (en proyecto)
Al momento de firmar un contrato de compra, se le cobrará una cuota de colocación / terminación de un 5,8% incluyendo 19% de IVA sobre el precio de compra por el comprador.
La información proporcionada por nosotros se basa en la información proporcionada por el vendedor o el vendedor. Para la exactitud e integridad de la información, ninguna responsabilidad puede ser aceptada. Una venta intermedia y los errores son reservados.
Nos referimos a nuestros términos y condiciones. A través de más utilizar nuestros servicios usted explicar su conocimiento y consentimiento.
También te podría gustar
Agnades Village Villa No 1
AQUILA 3 Bedroom Villa in Tala
8500 Paphos






































