Neo Chorio Paphos:
Referencia: 0048








Precio:
680.000 €
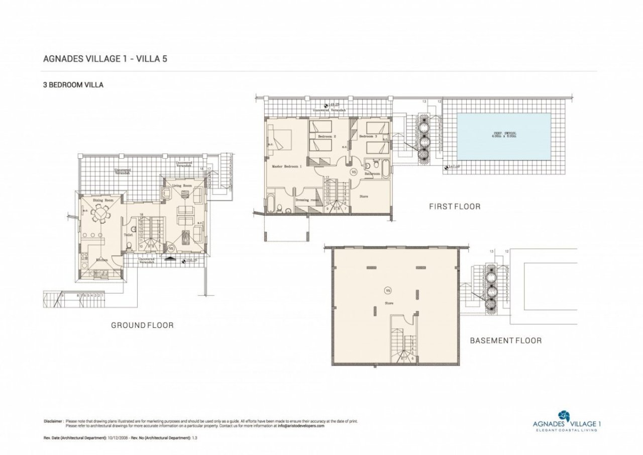
Superficie útil aprox.:
289,46 m²
Terreno aprox.:
628,10 m²
Cantidad habitaciones:
7
Tipo de casa: Villa
N° de plantas: 3
Cocina: Cocina completa
Cantidad dormitorios: 3
Cantidad baños: 2
Terraza: 3
WC para huéspedes: sí
Piscina: sí
Sótano: Trastero
Aire acondicionado: sí
Para vacaciones: sí
Cantidad de aparcamientos: 1 x Garaje
Al momento de firmar un contrato de compra, se le cobrará una cuota de colocación / terminación de un 5,8% incluyendo 19% de IVA sobre el precio de compra por el comprador.
La información proporcionada por nosotros se basa en la información proporcionada por el vendedor o el vendedor. Para la exactitud e integridad de la información, ninguna responsabilidad puede ser aceptada. Una venta intermedia y los errores son reservados.
Nos referimos a nuestros términos y condiciones. A través de más utilizar nuestros servicios usted explicar su conocimiento y consentimiento.
También te podría gustar
Erstklassige 2SZ Villa im Golf Resort Venus Rock Paphos
Seafront Villa Pelagos No 6b
8852 Neo Chorio Paphos



















