Tala /Paphos:
Property ID: 0078
























Price:
850.000 €
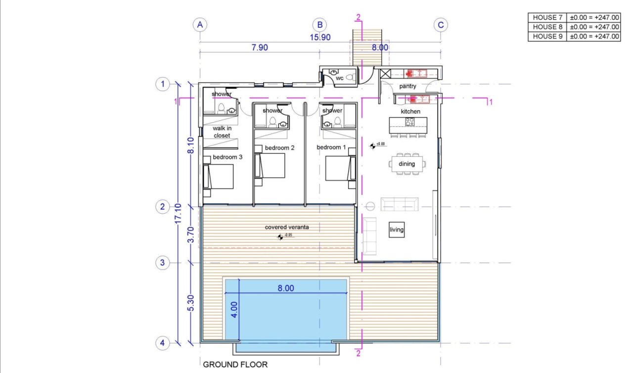
Living space:
192 sq. m.
Plot size:
775 sq. m.
No. of rooms:
4
Type of house: Bungalow
Number of floors: 1
Kitchen: Open
Number of bedrooms: 3
Number of bathrooms: 3
Terrace: 2
Loggia: 1
Guest WC: yes
Pool: yes
Air condition: yes
Alarm system: yes
Suitable as holiday home: yes
Surroundings: Golf course
Number of parking spaces: 1 x Outside parking space
Views: Sea View
Quality of fittings: Luxury
Year of construction: 2025
Construction phase: House under construction
Condition: First occupier
Upon signing a purchase contract, a placement / termination fee of 5.8% including 19% VAT on the purchase price by the buyer will be charged.
The information provided by us is based on information provided by the seller or the seller. For the correctness and completeness of the information, no responsibility or liability can be accepted. An intermediate sale and mistakes are reserved.
ON REQUEST we recommend financing experts from renowned houses such Bausparkasse Mainz, Deutsche Vermögensberatung and others.
We refer to our terms and conditions. Through further use our services do you explain your knowledge and consent.
You might also like
8577 Tala /Paphos



































































