Neo Chorio Paphos:
Property ID: 0052










Price:
539.000 €
Living space:
220,69 sq. m.
Plot size:
481,14 sq. m.
No. of rooms:
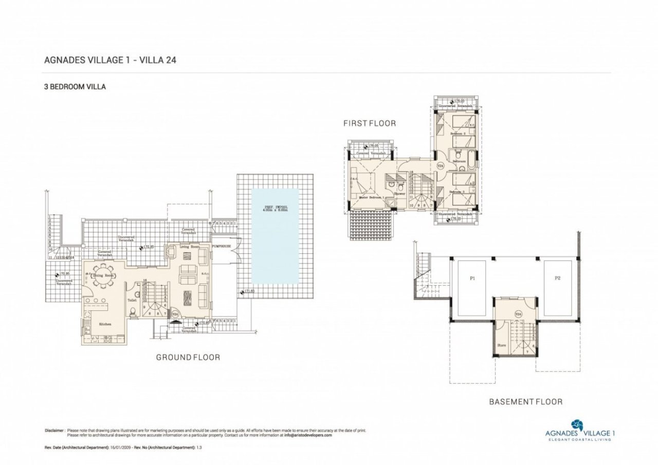
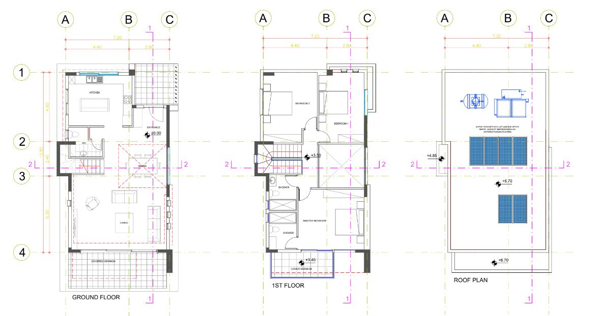
5
Number of floors: 3
Kitchen: Fitted kitchen
Number of bedrooms: 3
Number of bathrooms: 2
Terrace: 3
Loggia: 3
Guest WC: yes
Pool: yes
Basement: Storage room
Air condition: yes
Suitable as holiday home: yes
Surroundings: Quiet area, Pool
Number of parking spaces: 2 x Carport
Views: Sea View
Quality of fittings: Luxury
Construction phase: House in planning stage (project planned)
Condition: House in planning stage (project planned)
Upon signing a purchase contract, a placement / termination fee of 5.8% including 19% VAT on the purchase price by the buyer will be charged.
The information provided by us is based on information provided by the seller or the seller. For the correctness and completeness of the information, no responsibility or liability can be accepted. An intermediate sale and mistakes are reserved.
ON REQUEST we recommend financing experts from renowned houses such Bausparkasse Mainz, Deutsche Vermögensberatung and others.
We refer to our terms and conditions. Through further use our services do you explain your knowledge and consent.
You might also like
8852 Neo Chorio Paphos













































