Pafos:
Emlak No.: 0114
















Fiyat:
450.000 €
Yaklaşık Oturma Alanı:
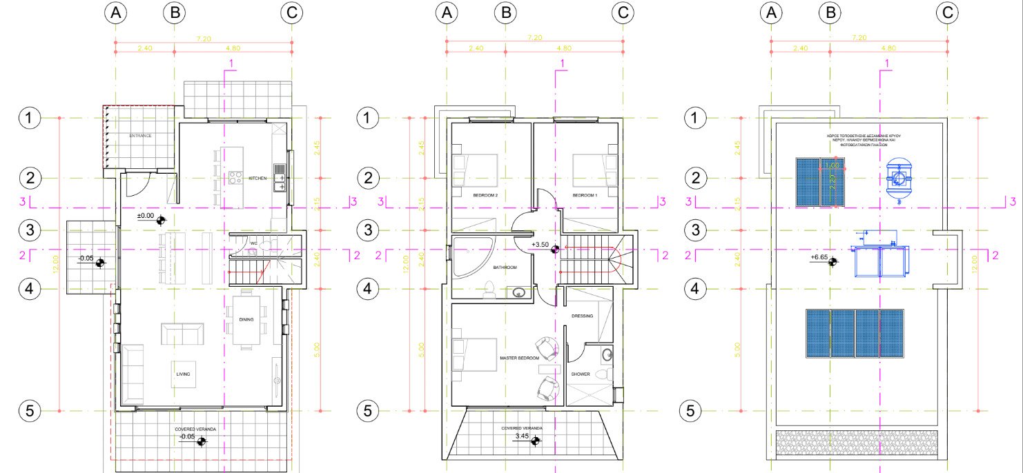
180 m2
Arsa Büyüklüğü:
325 m2
Oda sayısı:
4
Ek bilgiler
Ev tipi: Villa
Kat Sayisi: 2
Yatak Odası Sayısı: 3
Banyo Sayısı: 2
Balkon: 2
Teras: 2
Misafir WC: evet
Bahçe: evet
Havuz: evet
Klima: evet
Alarm: evet
Yazlik olarak tasarlanmis: evet
Otopark sayisi: 2 x Dis kurulum yeri
Manzara: Deniz manzaralı
Yapi kalitesi: Lüks
Yapı aşaması: Ev yapiliyor
Durum: Ilk kullanim
Kalörifer: Zemin
Ayrıca şunları da beğenebilirsiniz
Paphos/ Emba
Emlak No. 0040
20 Luxus- Villen mit Meerblick
470.000 €
4
Paphos
Emlak No. 0068
Moderne Residenz Villa 3 SZ Venus Rock
649.000 €
4
ürün-Adres
8270 Pafos
Başkasına öner

























