Kato Paphos:
Emlak No.: 0086
























Fiyat:
630.000 €
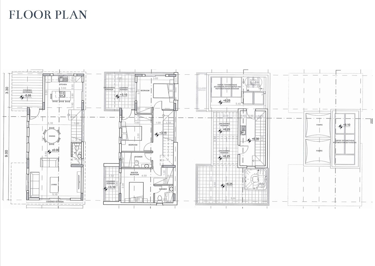
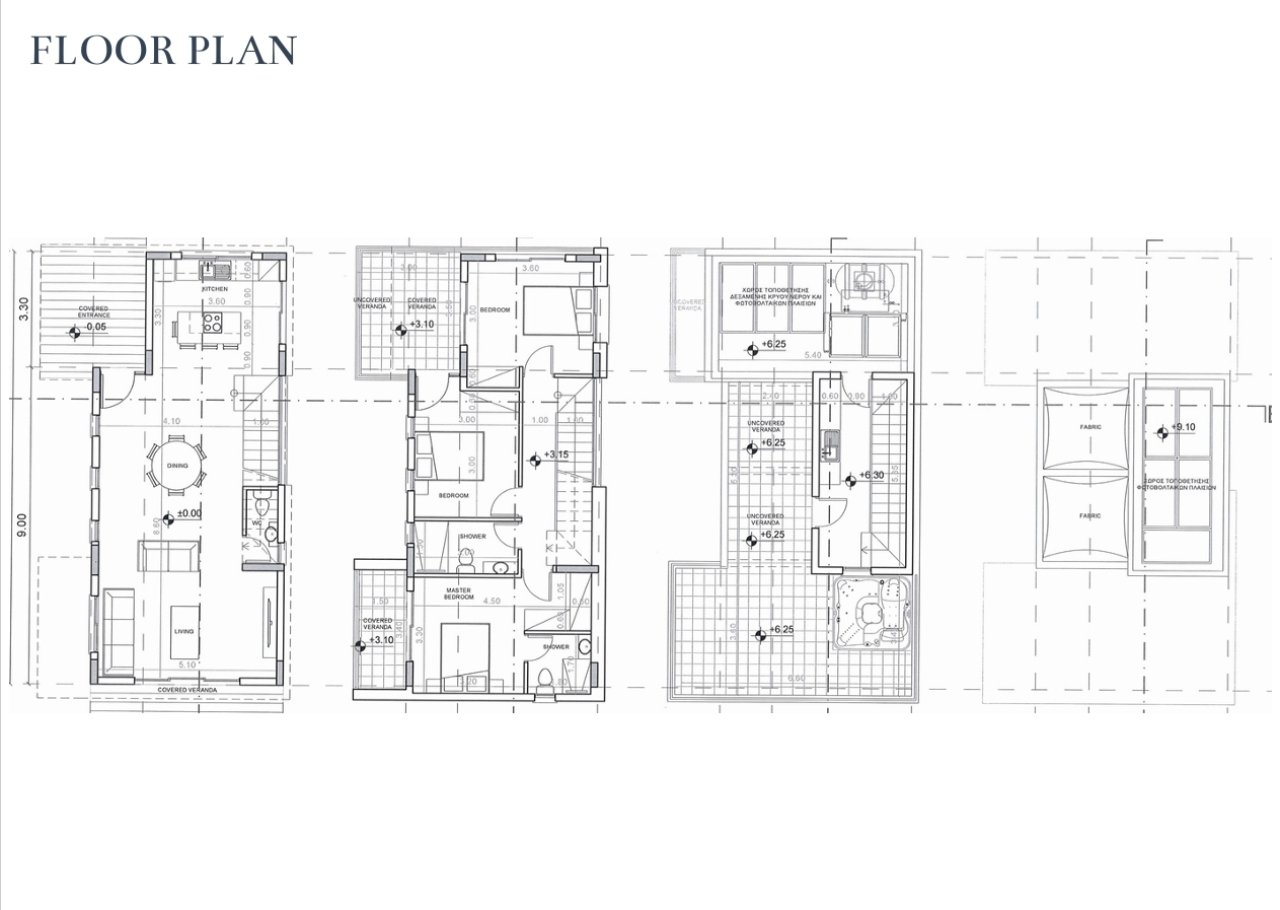
Yaklaşık Oturma Alanı:
140 m2
Arsa Büyüklüğü:
300 m2
Oda sayısı:
4
Ek bilgiler
Ev tipi: Villa
Kat Sayisi: 2
Mutfak: Mutfak Mobilyası, Açik
Banyo: Duş, Pencere
Yatak Odası Sayısı: 3
Banyo Sayısı: 2
Balkon: 2
Teras: 2
Misafir WC: evet
Bahçe: evet
Havuz: evet
Klima: evet
Alarm: evet
Yazlik olarak tasarlanmis: evet
Çevre: Alışveriş imkânları, Sahile yakın
Otopark sayisi: 2 x Dis kurulum yeri
Manzara: Deniz manzaralı
Yapi kalitesi: Yüksek
Yapım Yılı: 2025
Yapı aşaması: Ev yapim asamasinda (projelendirildi)
Durum: Ev yapim asamasinda (projelendirildi)
Kalörifer: Zemin
Enerji sınıfı: A
Ayrıca şunları da beğenebilirsiniz
Argaka
Emlak No. K023
Argaka Villa Type C
899.000 €
5
Paphos
Emlak No. 0056
Exclusive Luxus beachfront Villa Pelago Paphos Nr.7
2.800.000 €
8
Paphos
Emlak No. 0058
Luxus Strandvilla in Pelagos
2.950.000 €
7
ürün-Adres
8046 Kato Paphos
Başkasına öner
























