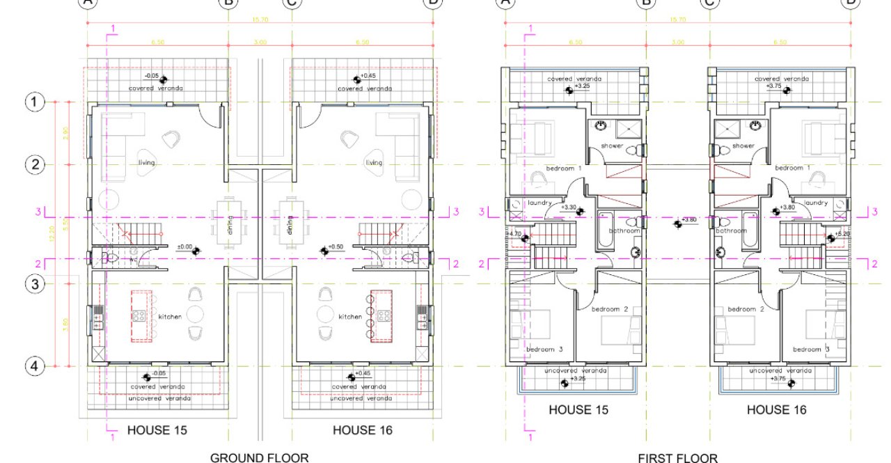
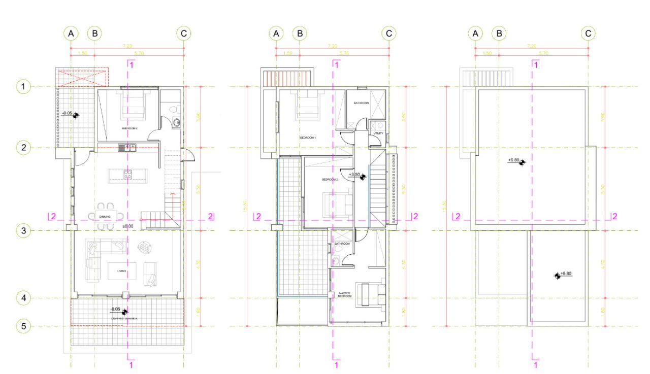
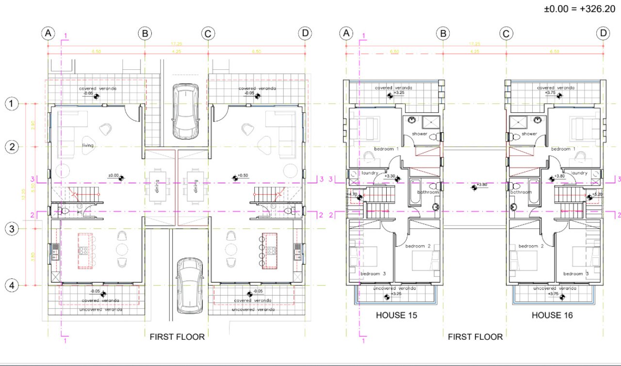
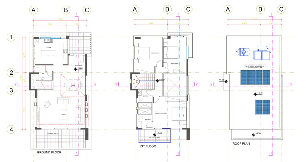
Tremithousa / Paphos:
Emlak No.: 0077




































Fiyat:
530.000 €
Yaklaşık Oturma Alanı:
195 m2
Arsa Büyüklüğü:
260 m2
Oda sayısı:
4
Ek bilgiler
Ev tipi: Villa
Kat Sayisi: 2
Yatak Odası Sayısı: 3
Banyo Sayısı: 2
Teras: 2
Misafir WC: evet
Klima: evet
Alarm: evet
Yazlik olarak tasarlanmis: evet
Otopark sayisi: 1 x Dis kurulum yeri
Manzara: Deniz manzaralı
Yapi kalitesi: Lüks
Yapı aşaması: Ev yapim asamasinda (projelendirildi)
Durum: Ev yapim asamasinda (projelendirildi)
Kalörifer: Zemin
Ayrıca şunları da beğenebilirsiniz
ürün-Adres
8270 Tremithousa / Paphos
Başkasına öner

































































