Peristerona:
Emlak No.: M001








Aylyk so?uk kira:
1.900 €
Yaklaşık Oturma Alanı:
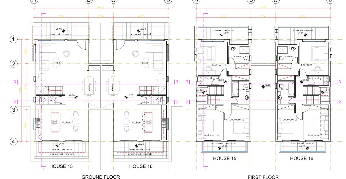
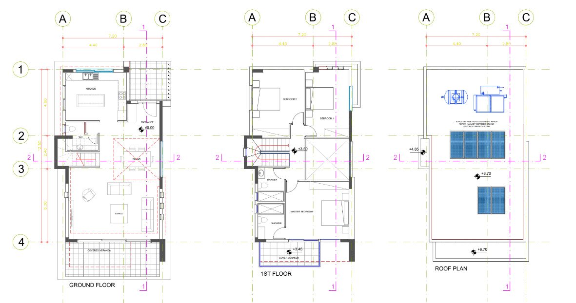
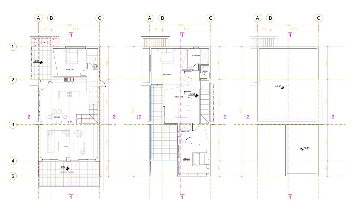
220 m2
Arsa Büyüklüğü:
2.300 m2
Oda sayısı:
4
Ek bilgiler
Ev tipi: Villa
Kat Sayisi: 2
Komisyon vardır: hayır
Mutfak: Mutfak Mobilyası
Banyo: Duş, Küvet, Pencere
Yatak Odası Sayısı: 4
Banyo Sayısı: 4
Teras: 3
Misafir WC: evet
Şömine: evet
Havuz: evet
kiler: hayır
Klima: evet
Yazlik olarak tasarlanmis: evet
Çevre: Alışveriş imkânları, Liman, Sakin bölge, Havuz, Orman
Otopark sayisi: 4 x Dis kurulum yeri
Mobilyali: evet
Manzara: Deniz manzaralı
Son yenileme/ restorasyon: 2022
Yapi kalitesi: Yüksek
Yapım Yılı: 2010
Zemin Kaplama: Fayans
Kalörifer: Merkezi Kalörifer Sistemi
Ayrıca şunları da beğenebilirsiniz
ürün-Adres
8810 Peristerona
Başkasına öner





































