Tala, Paphos:
objekt-nr.: 0090






















pris:
800.000 €
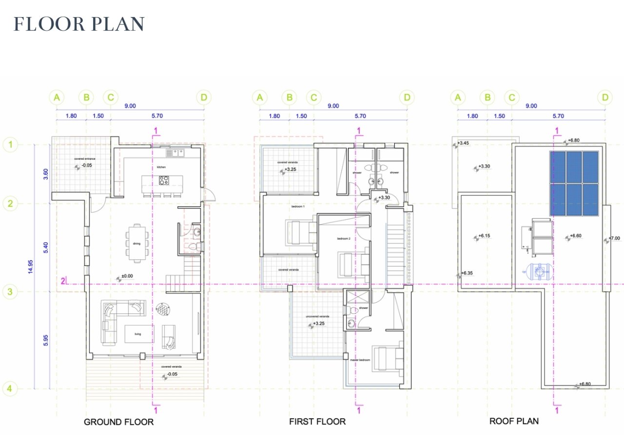
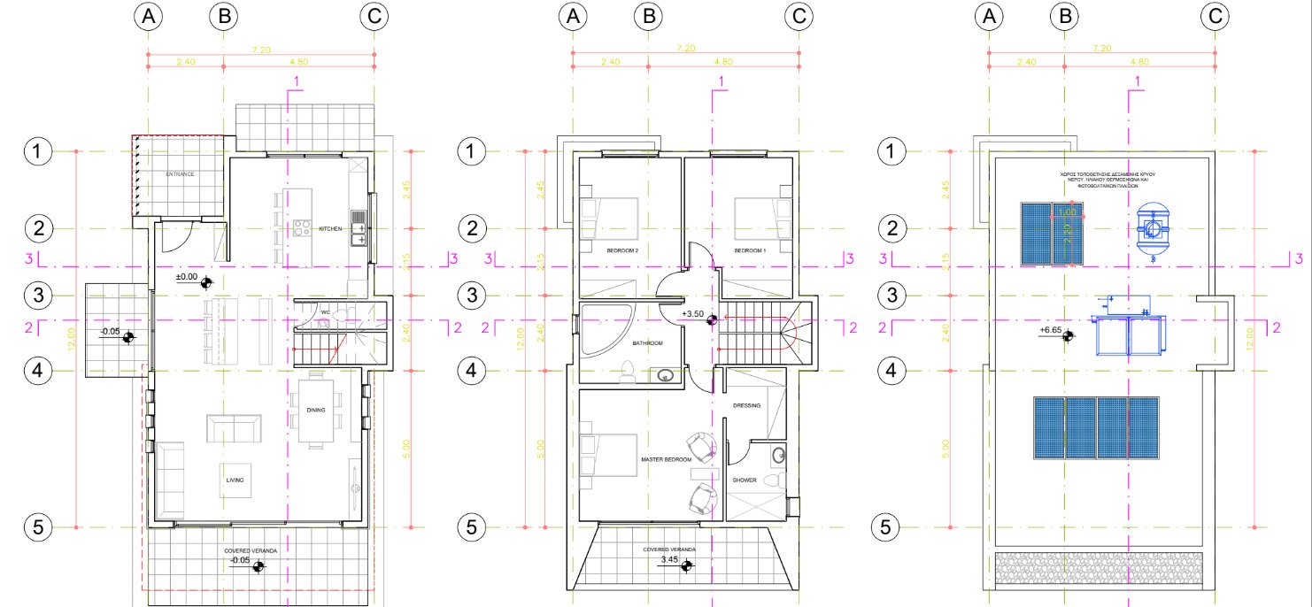
bostadsyta ca.:
180 kvm.
tomt ca.:
985 kvm.
antal rum:
4
Hustyp: Villa
Antal våningar: 2
Kök: Köksdel, öppen
Badrum: Dusch, Fönster
Antal sovrum: 3
Antal badrum: 3
balkon: 2
terrass: 2
Gäst-WC: ja
Trädgård: ja
pool: ja
klimatanläggning: ja
Larmsystem: ja
Lämpar sig som semesterhus: ja
omgivning: shoppingmöjligheter, grundskola
Antal parkeringsplatser: 2 x Parkeringsplatser utomhus
Utsikt: Havsutsikt
Utrustningens kvalitet: Finare stil
byggår: 2025
Byggnadsfas: Planerat hus (projekterat)
tillstånd: Planerat hus (projekterat)
Upon signing a purchase contract, a placement / termination fee of 5.8% including 19% VAT on the purchase price by the buyer will be charged.
The information provided by us is based on information provided by the seller or the seller. For the correctness and completeness of the information, no responsibility or liability can be accepted. An intermediate sale and mistakes are reserved.
We refer to our terms and conditions. Through further use our services do you explain your knowledge and consent.
Du kanske också gillar
8577 Tala, Paphos


































