Tala /Paphos:
objekt-nr.: 0078
























pris:
850.000 €
bostadsyta ca.:
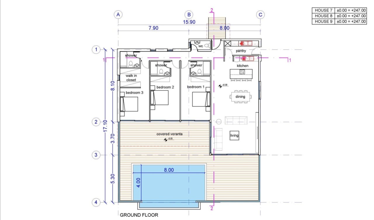
192 kvm.
tomt ca.:
775 kvm.
antal rum:
4
Hustyp: bungalow
Antal våningar: 1
Kök: öppen
Antal sovrum: 3
Antal badrum: 3
terrass: 2
loggia: 1
Gäst-WC: ja
pool: ja
klimatanläggning: ja
Larmsystem: ja
Lämpar sig som semesterhus: ja
omgivning: Golfbana
Antal parkeringsplatser: 1 x Parkeringsplatser utomhus
Utsikt: Havsutsikt
Utrustningens kvalitet: Lyx
byggår: 2025
Byggnadsfas: Hus under byggnad
tillstånd: Första inflyttning
Upon signing a purchase contract, a placement / termination fee of 5.8% including 19% VAT on the purchase price by the buyer will be charged.
The information provided by us is based on information provided by the seller or the seller. For the correctness and completeness of the information, no responsibility or liability can be accepted. An intermediate sale and mistakes are reserved.
We refer to our terms and conditions. Through further use our services do you explain your knowledge and consent.
Du kanske också gillar
Agnades Village Villa No 2
Erstklassige 2SZ Villa im Golf Resort Venus Rock Paphos
AQUILA 3 Bedroom Villa in Tala
8577 Tala /Paphos



























