Tremithousa / Paphos:
№ объекта: 0073


























Цена:
620.000 €
Жилая площадь:
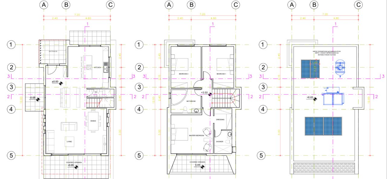
205 кв.м
Земельный участок ок.:
625 кв.м
Количество комнат:
4
Тип дома: Вилла
Количество этажей: 2
Количество спальных комнат: 3
Количество ванных комнат: 2
Терраса: 2
Гостевой туалет: Да
Кондиционер: Да
Сигнализация: Да
Пригоден в качестве дома для проведения отпуска: Да
Количество мест автостоянки: 1 x Парковка снаружи
Вид из окна: Вид на море
Качество отделки: Люкс
Фаза строительства: В проекте
Состояние: В проекте
Upon signing a purchase contract, a placement / termination fee of 5.8% including 19% VAT on the purchase price by the buyer will be charged.
The information provided by us is based on information provided by the seller or the seller. For the correctness and completeness of the information, no responsibility or liability can be accepted. An intermediate sale and mistakes are reserved.
We refer to our terms and conditions. Through further use our services do you explain your knowledge and consent.
Вам также может понравиться
8270 Tremithousa / Paphos








































