Paphos:
№ объекта: 0066










Цена:
670.000 €
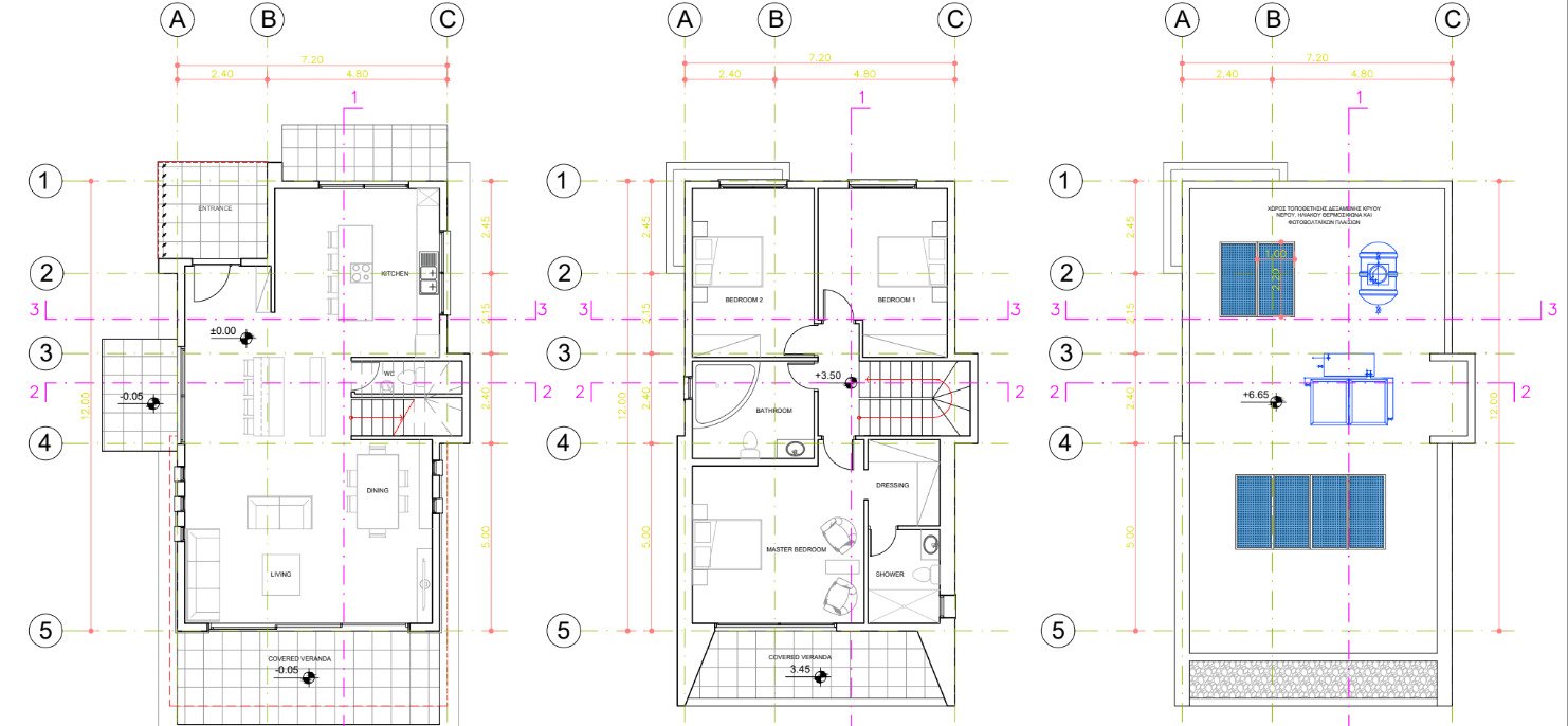
Жилая площадь:
186,12 кв.м
Земельный участок ок.:
775,04 кв.м
Количество комнат:
4
Тип дома: Вилла
Количество этажей: 2
Кухня: Встроенная кухня
Количество спальных комнат: 3
Количество ванных комнат: 3
Терраса: 3
Гостевой туалет: Да
Бассейн: Да
Кондиционер: Да
Пригоден в качестве дома для проведения отпуска: Да
Окрестности: Площадка для игры в гольф
Количество мест автостоянки: 1 x Гараж с навесом
Вид из окна: Вид на море
Качество отделки: Повышенное
Состояние: Первое заселение
Upon signing a purchase contract, a placement / termination fee of 5.8% including 19% VAT on the purchase price by the buyer will be charged.
The information provided by us is based on information provided by the seller or the seller. For the correctness and completeness of the information, no responsibility or liability can be accepted. An intermediate sale and mistakes are reserved.
We refer to our terms and conditions. Through further use our services do you explain your knowledge and consent.
Вам также может понравиться
Agnades Village Villa No 2
Atemberaubende Luxusresidenz Lofos Residences
8500 Paphos








































