Tala, Paphos:
numeru objektu: 0088
























Cena:
740.000 €
Powierzchnia mieszkalna okolo:
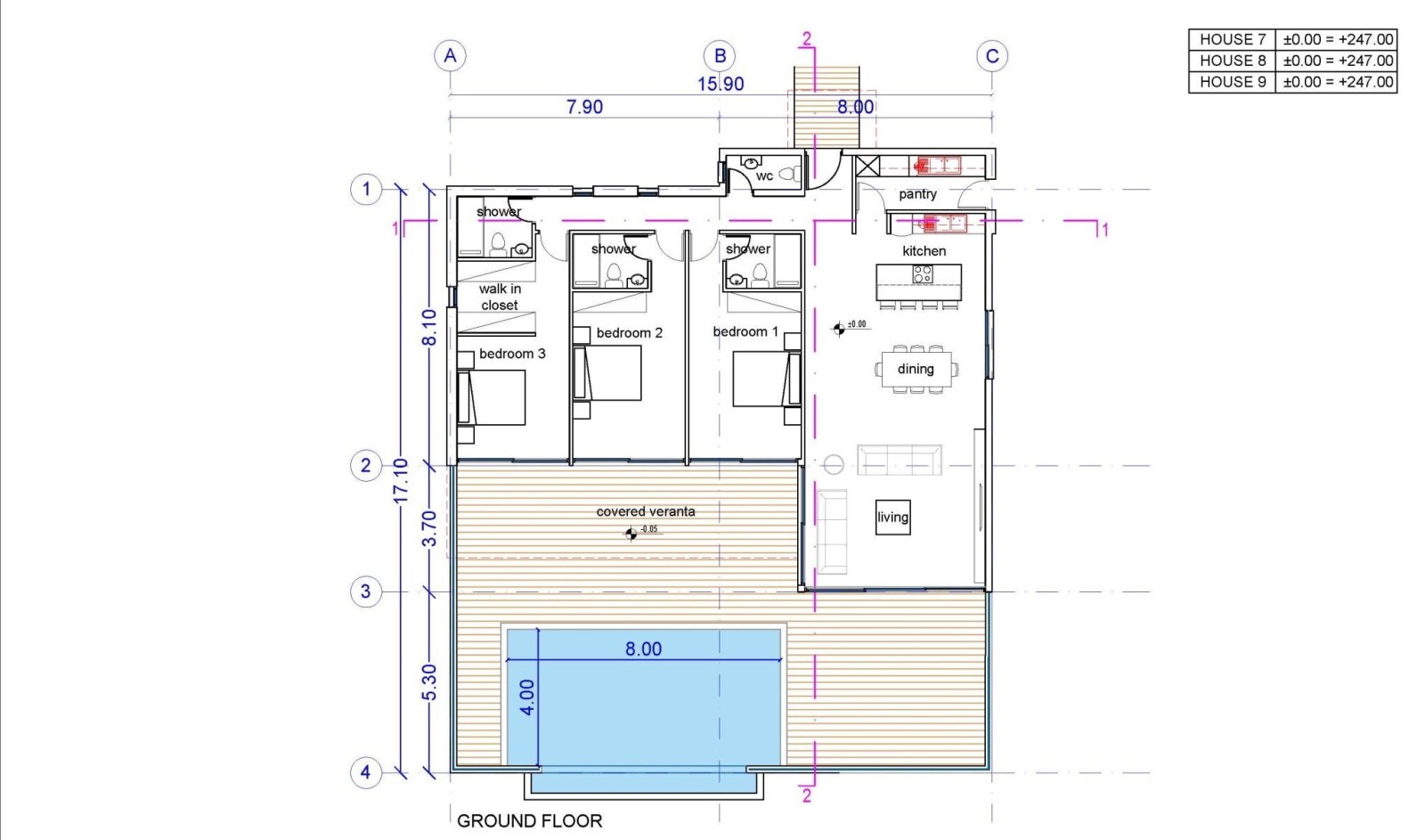
180 m2
Dzialka okolo:
685 m2
Liczba izb:
4
Dalsze dane
typ domu: Willa
ilosc pieter: 2
Kuchnia: kuchnia zbudowana, Otwarta
Lazienka: Prysznic, Okno
ilosc sypialni: 3
ilosc lazienek: 3
Balkon: 2
Taras: 2
Toaleta goscinna: tak
Ogród: tak
basen: tak
klimatyzacja: tak
System alarmowy: tak
Dostosowany jako dom wakacyjny: tak
okolica: możliwość robienia zakupów, szkoła podstawowa
ilosc miejsc parkingowych: 2 x Miejsce postojowe na zewnatrz
Widok: Z widokiem na morze
Jakosc wyposazenia: Wyszukane
Rok budowy: 2025
Faza budowy: Dom w planie (zaprojektowany)
Stan: Dom w planie (zaprojektowany)
Może Ci się też spodobać
Paphos
Objekt nr 0071
Schicke 2SZ Villa im berühmten Venus Rock Golf Resort
397.000 €
3
Kato Paphos
Objekt nr 0086
ARTEMIS 3Bedroom Villa in Kato Paphos
630.000 €
4
Objekt-Adres
8577 Tala, Paphos
Dalsze przekazywanie informacji o obiekcie









































