Kato Paphos:
numeru objektu: 0087
























Cena:
660.000 €
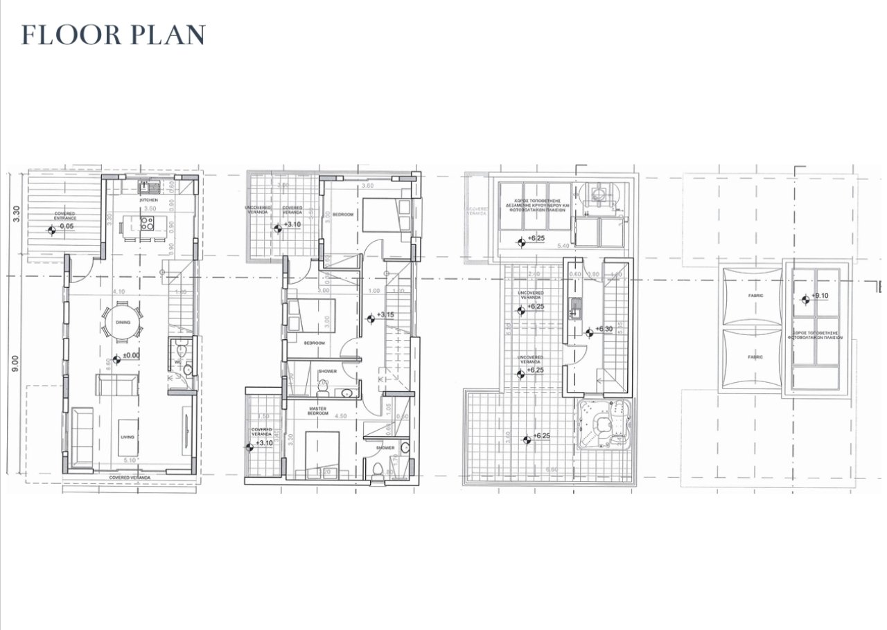
Powierzchnia mieszkalna okolo:
140 m2
Dzialka okolo:
360 m2
Liczba izb:
4
Dalsze dane
typ domu: Willa
ilosc pieter: 2
Kuchnia: kuchnia zbudowana, Otwarta
Lazienka: Prysznic, Okno
ilosc sypialni: 3
ilosc lazienek: 2
Balkon: 2
Taras: 2
Toaleta goscinna: tak
Ogród: tak
basen: tak
klimatyzacja: tak
System alarmowy: tak
Dostosowany jako dom wakacyjny: tak
okolica: możliwość robienia zakupów, bliskość plaży
ilosc miejsc parkingowych: 2 x Miejsce postojowe na zewnatrz
Widok: Z widokiem na morze
Jakosc wyposazenia: Wyszukane
Rok budowy: 2025
Faza budowy: Dom w planie (zaprojektowany)
Stan: Dom w planie (zaprojektowany)
Klasa energetyczna: A
Może Ci się też spodobać
Tala /Paphos
Objekt nr 0080
Erstklassige Luxusvilla Tala-Paphos
880.000 €
4
Objekt-Adres
8046 Kato Paphos
Dalsze przekazywanie informacji o obiekcie













































































