Kato Paphos:
numeru objektu: 0085
























Cena:
650.000 €
Powierzchnia mieszkalna okolo:
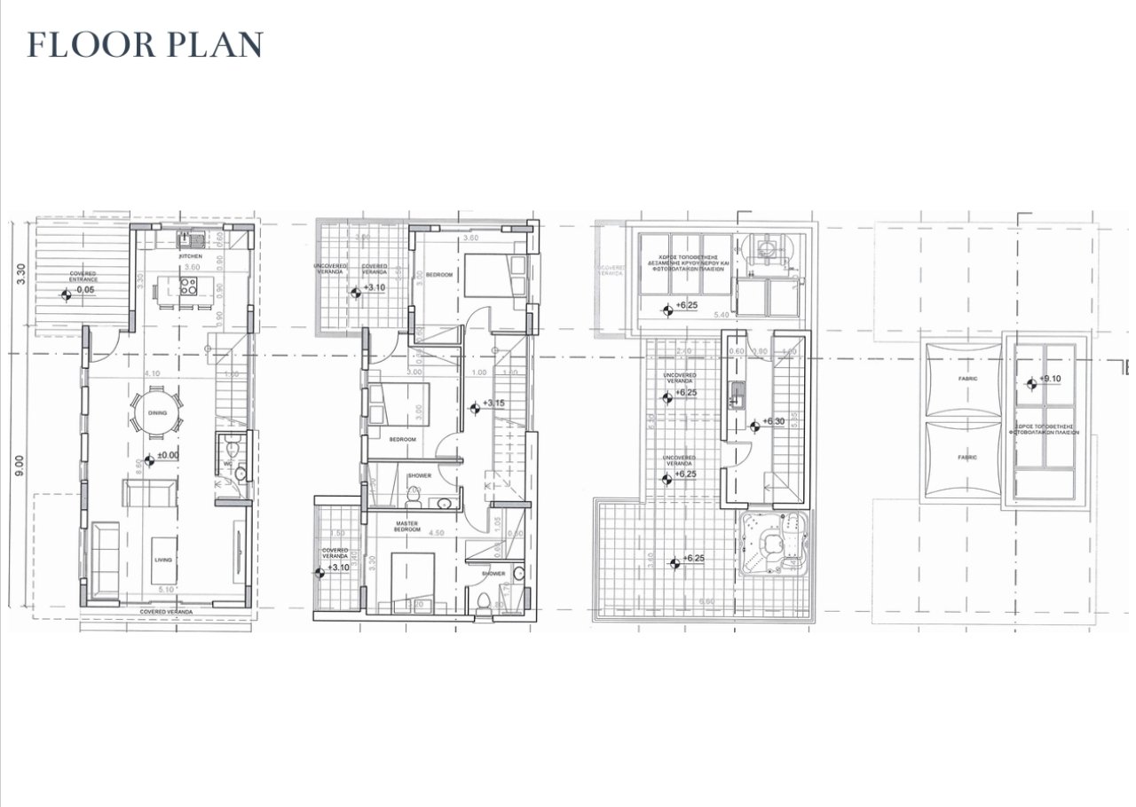
140 m2
Dzialka okolo:
350 m2
Liczba izb:
4
Dalsze dane
typ domu: Willa
ilosc pieter: 2
Kuchnia: kuchnia zbudowana, Otwarta
Lazienka: Prysznic, Okno
ilosc sypialni: 3
ilosc lazienek: 2
Balkon: 2
Taras: 2
Toaleta goscinna: tak
Ogród: tak
basen: tak
klimatyzacja: tak
System alarmowy: tak
Dostosowany jako dom wakacyjny: tak
okolica: możliwość robienia zakupów, bliskość plaży
ilosc miejsc parkingowych: 2 x Miejsce postojowe na zewnatrz
Widok: Z widokiem na morze
Jakosc wyposazenia: Wyszukane
Rok budowy: 2025
Faza budowy: Dom w planie (zaprojektowany)
Stan: Dom w planie (zaprojektowany)
Klasa energetyczna: A
Może Ci się też spodobać
Paphos/ Emba
Objekt nr 0040
20 Luxus- Villen mit Meerblick
470.000 €
4
Tala, Paphos
Objekt nr 0089
AQUILA 3 Bedroom Villa in Tala
750.000 €
4
Objekt-Adres
8046 Kato Paphos
Dalsze przekazywanie informacji o obiekcie


































