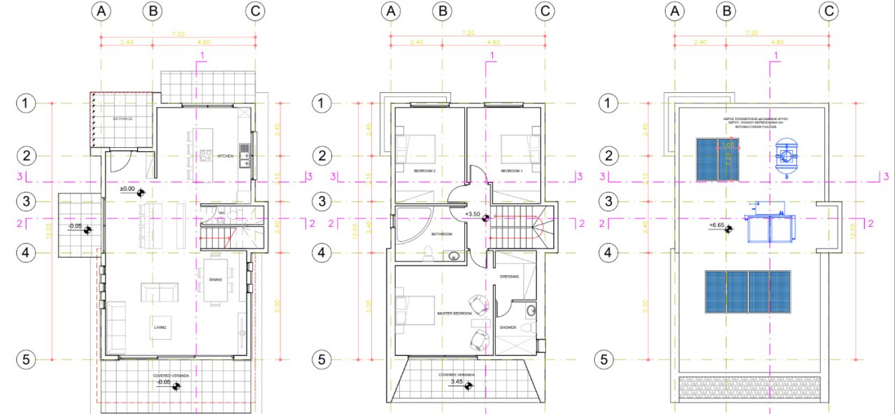
Tremithousa / Paphos:
numeru objektu: 0073


























Cena:
620.000 €
Powierzchnia mieszkalna okolo:
205 m2
Dzialka okolo:
625 m2
Liczba izb:
4
Dalsze dane
typ domu: Willa
ilosc pieter: 2
ilosc sypialni: 3
ilosc lazienek: 2
Taras: 2
Toaleta goscinna: tak
klimatyzacja: tak
System alarmowy: tak
Dostosowany jako dom wakacyjny: tak
ilosc miejsc parkingowych: 1 x Miejsce postojowe na zewnatrz
Widok: Z widokiem na morze
Jakosc wyposazenia: Luksus
Faza budowy: Dom w planie (zaprojektowany)
Stan: Dom w planie (zaprojektowany)
Może Ci się też spodobać
Objekt-Adres
8270 Tremithousa / Paphos
Dalsze przekazywanie informacji o obiekcie
































































