Neo Chorio Paphos:
numeru objektu: 0048








Cena:
680.000 €
Powierzchnia mieszkalna okolo:
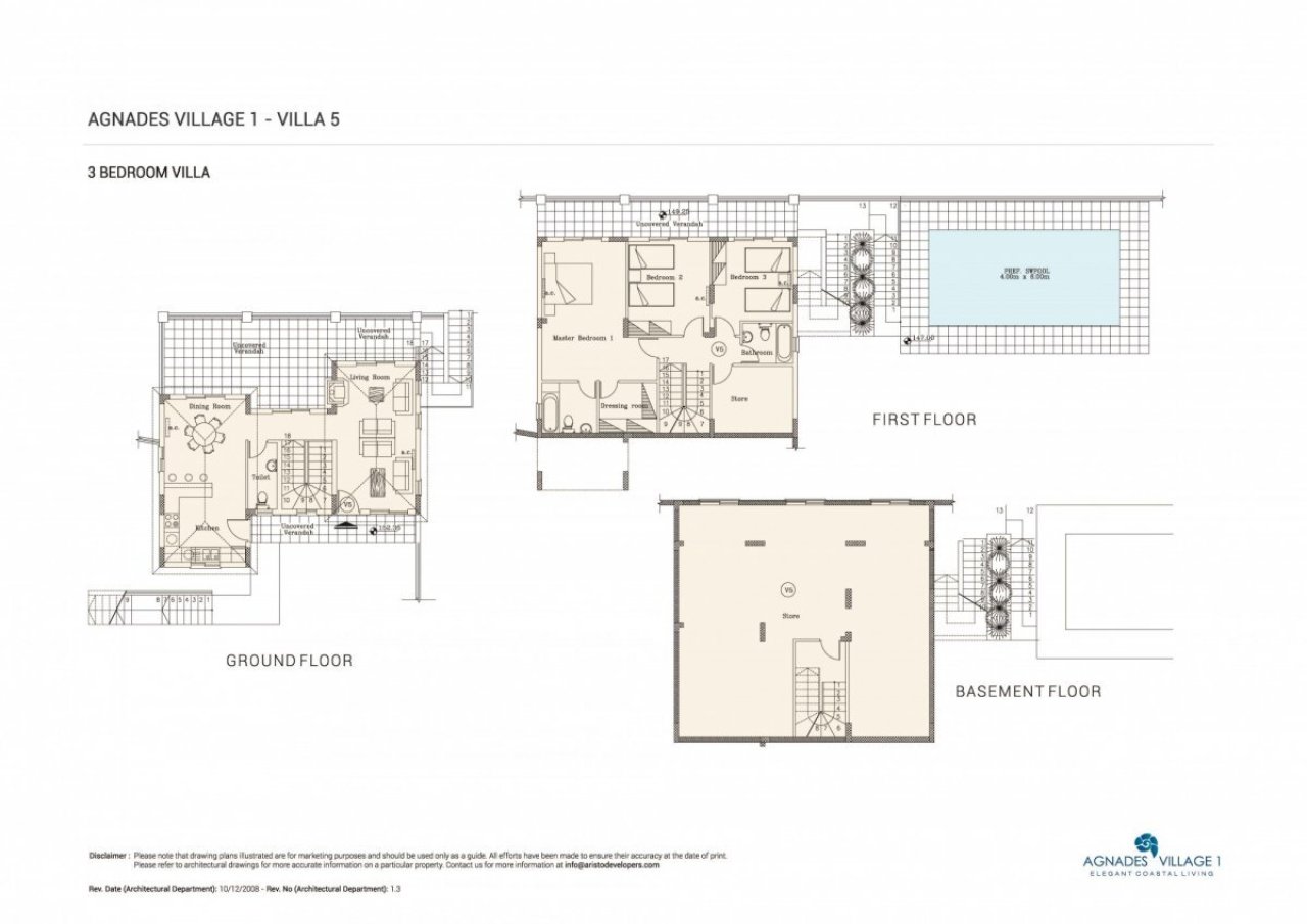
289,46 m2
Dzialka okolo:
628,10 m2
Liczba izb:
7
Dalsze dane
typ domu: Willa
ilosc pieter: 3
Kuchnia: kuchnia zbudowana
ilosc sypialni: 3
ilosc lazienek: 2
Taras: 3
Toaleta goscinna: tak
basen: tak
Piwnica: Pomieszczenie gospodarcze
klimatyzacja: tak
Dostosowany jako dom wakacyjny: tak
ilosc miejsc parkingowych: 1 x Garaz
Może Ci się też spodobać
Paphos
Objekt nr 0071
Schicke 2SZ Villa im berühmten Venus Rock Golf Resort
397.000 €
3
Kato Paphos
Objekt nr 0085
ARTEMIS 3Bedroom Villa in Kato Paphos
650.000 €
4
Objekt-Adres
8852 Neo Chorio Paphos
Dalsze przekazywanie informacji o obiekcie










































