Neo Chorio Paphos:
objektnr.: 0052










Pris:
539.000 €
Grundstykke:
481,14 m2
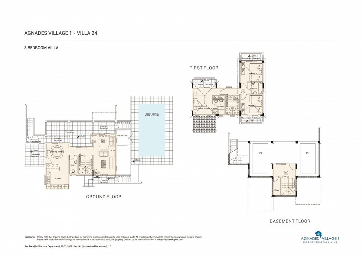
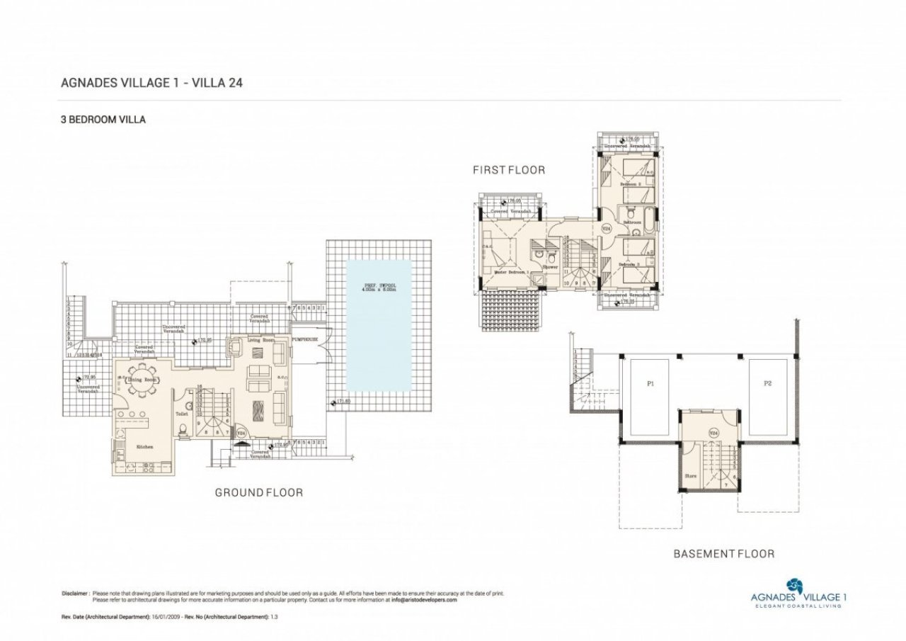
Antal vfrelser:
5
Etageantal: 3
Køkken: Elementkxkken
Antal sovevfrelser: 3
Antal badevfrelser: 2
Terrasse: 3
Loggia: 3
Gæstetoilet: ja
Pool: ja
Kflder: Pulterrum
Klimaanlfg: ja
Egnet til sommerhus: ja
Omgivelser: roligt område, Pool
Antal parkeringsomreder: 2 x Carport
Udsigt: Havudsigt
Udstyrets kvalitet: Luksus
Byggefase: Planlagt hus (projekteret)
Tilstand: Planlagt hus (projekteret)
Upon signing a purchase contract, a placement / termination fee of 5.8% including 19% VAT on the purchase price by the buyer will be charged.
The information provided by us is based on information provided by the seller or the seller. For the correctness and completeness of the information, no responsibility or liability can be accepted. An intermediate sale and mistakes are reserved.
We refer to our terms and conditions. Through further use our services do you explain your knowledge and consent.
Du kan også lide
Moderne Residenz Villa 3 SZ Venus Rock
8852 Neo Chorio Paphos
























































