Tala /Paphos:
Číslo objektu.: 0079
























Cena:
860.000 €
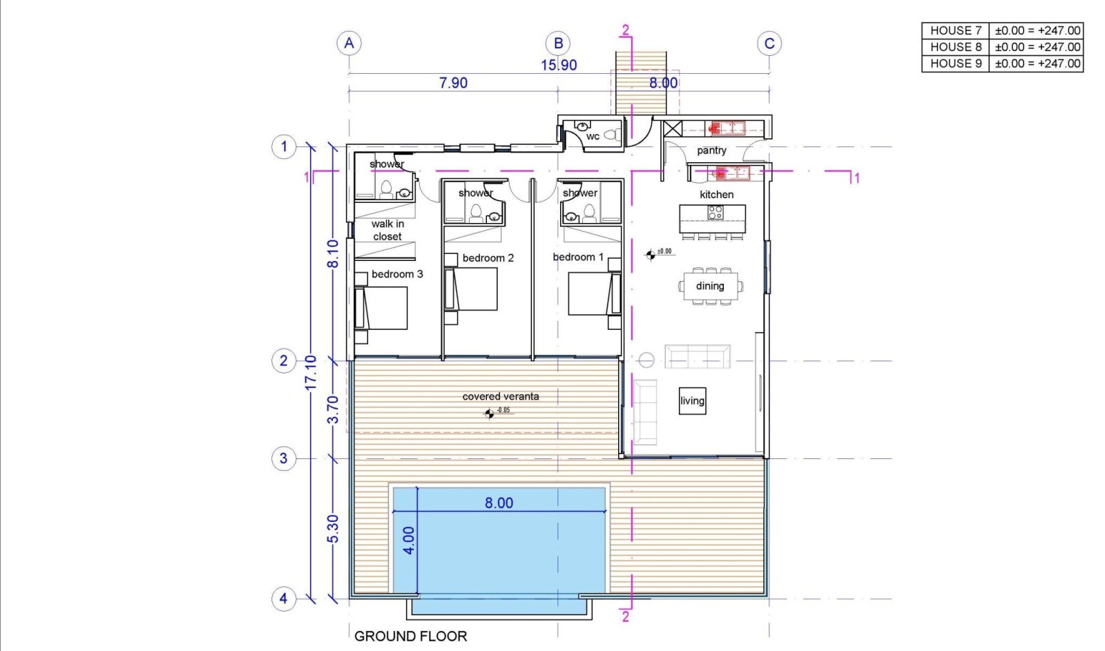
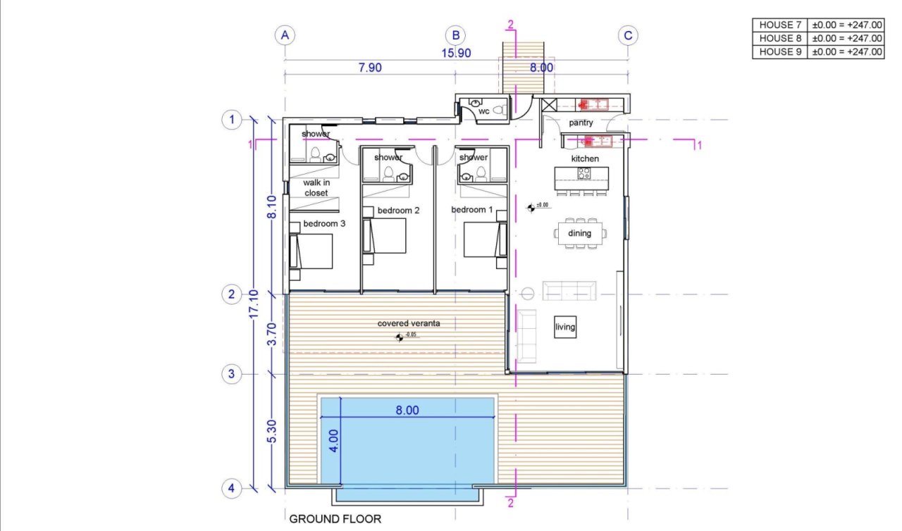
Obytná plocha přibližně.:
191 m2
Pozemek približne:
770 m2
Pocet místností:
4
Typ domu: Bungalov
Počet poschodí: 1
Kuchyně: Otevřený
Počet ložnic: 3
Počet koupelen: 3
Terasa: 2
Bezbariérový: Ano
WC pro hosty: Ano
Bazén: Ano
Klimatizace: Ano
Poplachové zarízení: Ano
Vhodné jako rekreační dům: Ano
okolí: Golfové hřiště
Počet parkovišť: 1 x Venkovní parkovací místo
Výhled: Výhled na moře
Poslední modernizace/ renovace: 2025
Kvalita vybavení: Luxus
Rok stavby: 2025
Stavební etapa: Dum ve výstavbe
Stav: První koupe
Upon signing a purchase contract, a placement / termination fee of 5.8% including 19% VAT on the purchase price by the buyer will be charged.
The information provided by us is based on information provided by the seller or the seller. For the correctness and completeness of the information, no responsibility or liability can be accepted. An intermediate sale and mistakes are reserved.
We refer to our terms and conditions. Through further use our services do you explain your knowledge and consent.
Také by se vám mohlo líbit
8577 Tala /Paphos
































