Neo Chorio Paphos:
Číslo objektu.: 0047














Cena:
646.000 €
Obytná plocha přibližně.:
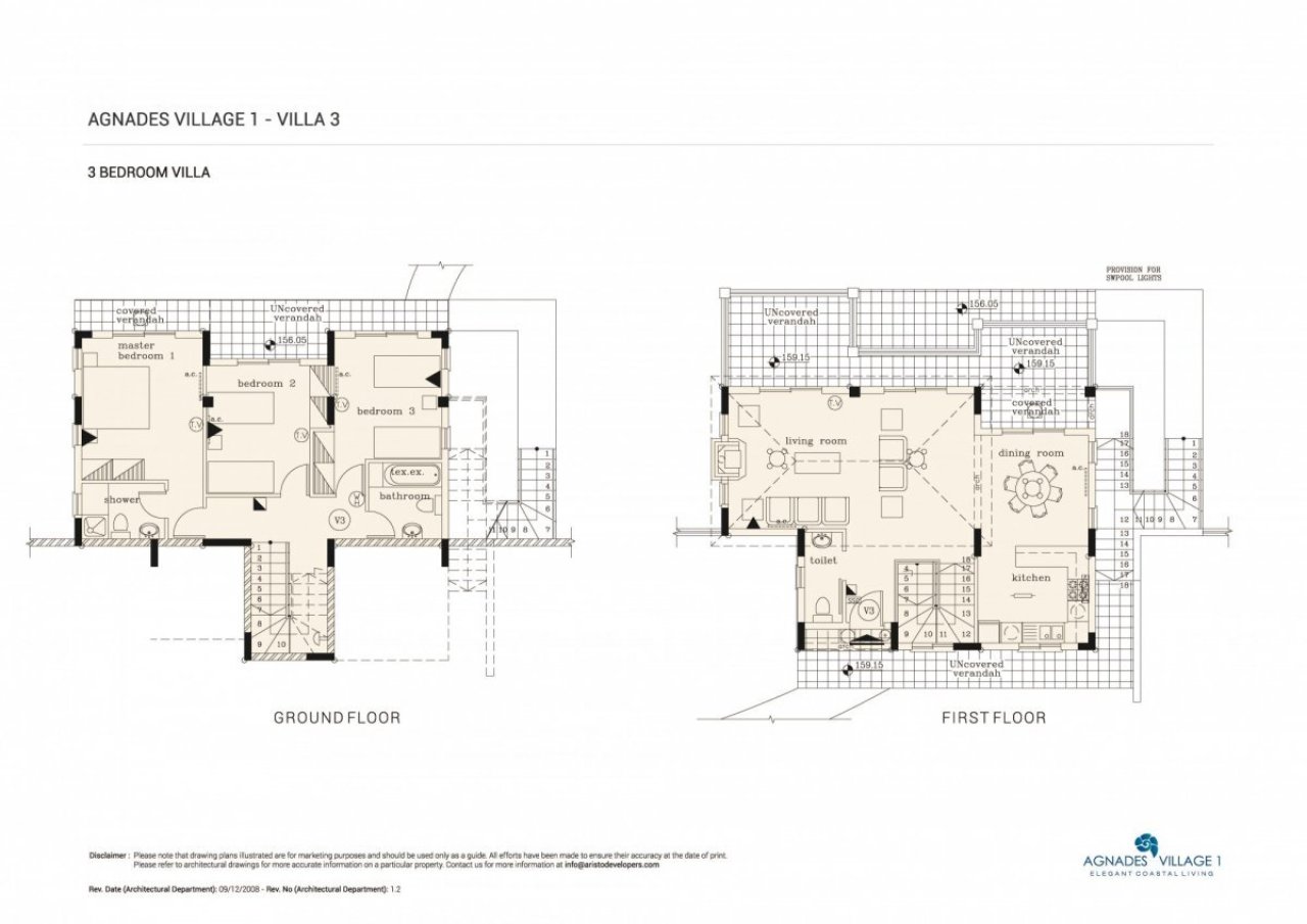
172,15 m2
Pozemek približne:
900,95 m2
Pocet místností:
5
Počet poschodí: 2
Kuchyně: Vestavená kuchyn
Počet ložnic: 3
Počet koupelen: 2
Terasa: 3
WC pro hosty: Ano
Bazén: Ano
Klimatizace: Ano
Vhodné jako rekreační dům: Ano
Počet parkovišť: 1 x Garáže
Výhled: Výhled na moře
Kvalita vybavení: Zvýšený
Stavební etapa: Dum v plánu (projektovaný)
Upon signing a purchase contract, a placement / termination fee of 5.8% including 19% VAT on the purchase price by the buyer will be charged.
The information provided by us is based on information provided by the seller or the seller. For the correctness and completeness of the information, no responsibility or liability can be accepted. An intermediate sale and mistakes are reserved.
We refer to our terms and conditions. Through further use our services do you explain your knowledge and consent.
Také by se vám mohlo líbit
Erstklassige 2SZ Villa im Golf Resort Venus Rock Paphos
Moderne Villa No 3 mit Panorama.Blick in Peyia
8852 Neo Chorio Paphos





















